Lage
Zwischen Rhein und Nahe auf der einen, sowie Kloppberg und Rochusberg auf der anderen Seite liegt Bingen, etwa 30 Kilometer westlich von Mainz entfernt. Durch die von Heinrich Heine, Victor Hugo und Clemens Brentano entdeckte Rheinromantik ist die Stadt weltbekannt geworden. 2001 wurde genau dieser Rheinabschnitt, das obere Mittelrheintal, zum Weltkulturerbe geadelt und hat damit eine neue touristische Entwicklung angestoßen. Zahlreiche Sehenswürdigkeiten, wie z.B. die Burg Klopp oder der sagenumwobene Mäuseturm machen Bingen zu einem viel besuchten Ferien- und Ausflugsort. Mit ca. 25.000 Einwohnern übernimmt Bingen in der Region die Funktion einer Mittelstadt: Es besteht eine gute Infrastruktur mit Krankenhaus, Amtsgericht sowie allen Schultypen bis hin zur Fachhochschule Rheinland-Pfalz. Eine moderne Fußgängerzone, Naherholungsanlagen am Rhein sowie viele Wein- und Speiselokale runden das Bild ab und sorgen für Abwechslung. Abwechslung finden Sie auch auf den zahlreichen gut ausgeschilderten Fahrradwegen, Freizeitpark Bingerbrück, Wanderwegen in und um Bingen, vielfältigen Vereinen und, und, und.
Im Jahr 2008 fand die Landesgartenschau statt. Durch die Einbeziehung aller Stadtteile wurde das gesamte Erscheinungsbild der Stadt merklich angehoben sowie die Infrastruktur verbessert. Die Rheinpromenade lädt zu Spaziergängen ein.
Weitere Informationen finden Sie unter www.bingen.de
Ausstattung
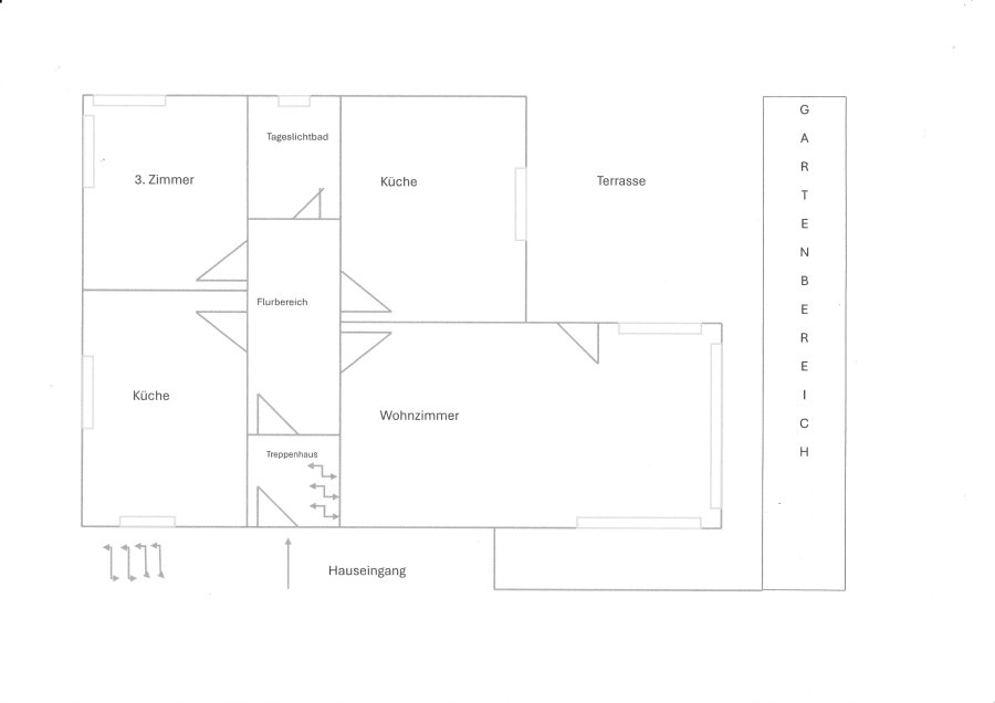
- Gas-Etagen-Heizung - Fliesen, Laminat - Vodafon - DSL - Internet verfügbar - Kellerraum - Terrasse/Garten
Sonstiges
Für Telefon, Vodafon, Gas, Strom schließen die Mieter mit den jeweiligen Versorgern direkt und eigene Verträge ab.
Alle Angaben nach bestem Wissen. Irrtum und Zwischenvermietung vorbehalten. Dieses Exposé ist eine Vorinformation, als Rechtsgrundlage gilt allein der abgeschlossene Mietvertrag.
Wegen Wahrung der Privatsphäre, dürfen weitere Bilder nicht zur Verfügung gestellt werden.
Die Einbauküche kann gegen eine Abstandszahlung in Höhe von 1.000,00 € übernommen werden.
Maklerprovision - Provisionsfrei
Gebäude-Energie-Pass - Gebäude-Energie-Pass Goehte Straße 4.pdf








